Projektchance in Bobingen – Investieren und Entwickeln
Neu




















Objektart
Grundstück
Objekttyp
Wohnen
Vermarktungsart
Kauf
PLZ
86399
Ort
Bobingen
ImmoNr
AI-00069
Grundstücksgröße
ca. 2.297 m²
Kaufpreis
1.300.000,00 €
Außen-Provision
4,76% inkl. der gesetzlichen MwSt. auf den beurkundeten Kaufpreis
Beschreibung
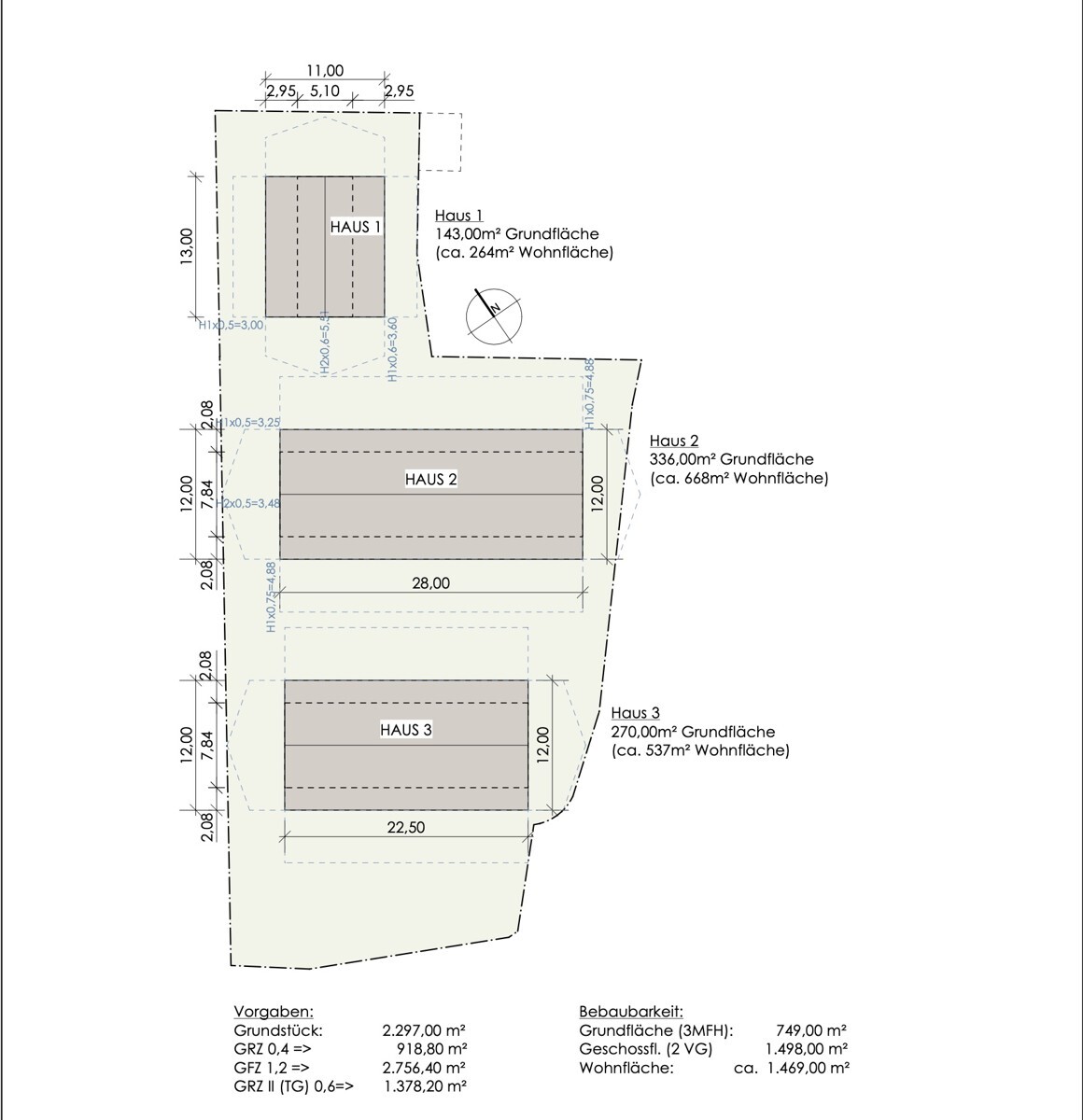
Dieses großzügige Grundstück bietet Bauträgern die ideale Grundlage für eine rentable Neubebauung. Nach Rücksprache mit den Behörden ist eine realisierbare Wohnfläche von ca. 1.469 m² möglich. Eine erste Entwurfsplanung liegt bereits vor. Geplant sind zwei Vollgeschosse plus Dachgeschoss, mit der Option auf drei separate Baukörper. Damit eignet sich das Areal hervorragend für die Entwicklung von Mehrfamilienhäusern oder Reihenhausanlagen – attraktive Wohneinheiten mit hoher Marktnachfrage. Die Lage und die Grundstücksgröße schaffen beste Voraussetzungen, ein wirtschaftlich starkes Bauprojekt zu realisieren und eine langfristig wertstabile Investition umzusetzen.Nutzen Sie diese seltene Gelegenheit, ein Grundstück mit klarer behördlicher Perspektive und hervorragenden Bebauungsmöglichkeiten zu sichern!
Lage
Das Grundstück befindet sich in einer hervorragenden Lage in Bobingen, einer Stadt mit einer starken wirtschaftlichen Entwicklung und hoher Lebensqualität. Dank der ausgezeichneten Infrastruktur ist die Immobilie sowohl für Investoren als auch für Gewerbetreibende äußerst attraktiv. Bobingen verfügt über einen eigenen Bahnhof, der eine schnelle Anbindung an Augsburg und die umliegenden Städte ermöglicht. Die Zugverbindungen sind ideal für Pendler und sorgen für eine hohe Nachfrage nach Wohnraum in der Region. Zudem ist die Stadt über die Bundesstraße B17 optimal an das überregionale Straßennetz angebunden, wodurch auch München in kurzer Zeit erreichbar ist. Sämtliche Geschäfte des täglichen Bedarfs – von Supermärkten über Bäckereien bis hin zu Apotheken – befinden sich direkt vor Ort. Ergänzt wird das Angebot durch Schulen, Kindergärten, Ärzte und eine Vielzahl an Freizeitmöglichkeiten. Bobingen bietet ein lebendiges Stadtleben mit einer guten Mischung aus urbanem Komfort und naturnaher Erholung. Ob als Wohnstandort oder für den gastronomischen Betrieb – die Lage dieses Grundstücks bietet beste Voraussetzungen für eine erfolgreiche Nutzung!Ausstattung
- Aktuelle Nutzung Gastronomie + Wohnen- Realisierbare Wohnfläche: ca. 1.469qm
- 2 VG + DG
- gilt Umgebungsbebauung
- Bebaubarkeit: Mehrfamilienhäuser oder Reihenhäuser
Pages: 1